- Woonoppervlakte
- Circa 92 m²
- Perceeloppervlakte
- Circa 353 m²
- Bouwjaar
- Gebouwd in 1954
- Aantal kamers
- 8 kamers (3 slaapkamers)
De grote (verharde) tuin/achterom met een aangebouwde overkapping biedt volop mogelijkheden voor comfortabel buitenleven. Naast en voor de woning kan er direct geparkeerd worden. De woning ligt in een prettige en groene woonomgeving, met prachtige wandelgebieden zoals de Brunssummerheide op korte afstand. Ook het centrum van Heerlen is snel bereikbaar, waar u winkels, restaurants en overige voorzieningen binnen enkele minuten vindt, evenals het openbaar vervoer en de diverse uitvalswegen.
Interesse gewekt? Ga voor nog meer informatie over deze woning en de wijk, naar de unieke URL denhaagstraat48.nl en/of neem dan contact op met Marcel Werrij, uw persoonlijke makelaar bij Spauwen | Werrij voor het maken van een bezichtigingsafspraak.
INDELING
Begane grond
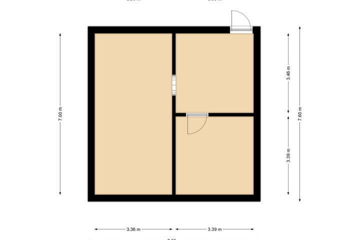
Entree in de hal met toegang tot de trap naar de 1e verdieping en separate deur naar de kelder. In de hal bevinden zich tevens de meterkast, het toilet en een praktische bergkast. Aan de voorzijde ligt de dichte keuken (7 m²), voorzien van een groot raam dat uitkijkt op de straatzijde. De keuken kent een eenvoudig afwerkniveau en is voorzien van een wandopstelling met o.a. een inbouwkoelkast, inbouwoven, spoelbak, 4-pits gasfornuis en afzuigkap.
De L-vormige woonkamer (26 m²) ligt aan de achterzijde en deels aan de zijkant van de woning en ligt hoger dan het straatniveau, waardoor deze ruimte veel privacy biedt. De woonkamer is voorzien een airco en de dubbele kunststof deuren bieden uitzicht/toegang tot de overkapping/serre en de verharde achtertuin.
1e verdieping
De eerste verdieping bestaat uit drie slaapkamers en de badkamer, bereikbaar via een centrale overloop. De grootste slaapkamer (22 m²) ligt aan de zijkant van de woning en strekt zich deels richting de achterzijde. Deze was voorheen opgedeeld in twee slaapkamers, maar de laatste bewoners hadden hier een 2e woonkamer van gemaakt. Theoretisch kan er dus nog een vierde slaapkamer gecreëerd worden. De tweede slaapkamer (9 m²) ligt aan de achterzijde en is ideaal als kinder- of logeerkamer en beschikt ook over een airconditioner.
De derde slaapkamer (7 m²) bevindt zich aan de voorzijde en kan ook uitstekend dienst doen als werkruimte of dat hier een nieuwe, grotere badkamer gerealiseerd wordt. De huidige badkamer is met 2 m² namelijk aan de kleine kant, maar wel mooi afgewerkt en uitgerust met een 2e toilet en inloopdouche.
Het afwerkniveau van de slaapkamers is matig, maar de basis is goed met kunststof ramen en HR+ glas, rolluiken en een betonnen dekvloer en er is voldoende ruimte/mogelijkheden om het naar eigen smaak in te richten/af te werken!
Kelder
De woning beschikt over een zeer ruime kelder van 49 m², verdeeld in meerdere ruimtes met een stahoogte van 1.86 m. Dankzij de afmetingen en indeling biedt deze verdieping volop mogelijkheden, bijvoorbeeld als hobbyruimte, werkruimte, opslag of wasruimte. De vorige eigenaren hadden er een heuse bar, dus ook hier weer volop mogelijkheden. De kelder is tevens bereikbaar via een deur achterom, die via een vaste trap naar het verharde terras leidt. In de kelder is tevens de CV-ketel gesitueerd. Dit betreft een combi-ketel van Hesi uit 2021 die gehuurd is. Koper is verplicht de huurovereenkomst over te nemen (€ 44,90 per maand).
Tuin
De achtertuin is royaal van opzet en volledig verhard. Een moderne kunststof overkapping biedt een fijne plek om beschut te zitten en te genieten van het buitenleven. De tuin biedt veel mogelijkheden voor verdere inrichting naar wens. Tevens is er aan de rechterkant een verharde trap naar de kelder en links is een poortje wat leidt naar de verharde naast de woning, waar plek is voor tenminste twee auto's. Links van deze inrit is nog een stuk grond wat toebehoort aan de woning, maar dient als recht van overpad voor de naast gelegen percelen.
Bijzonderheden
- Gunstig gelegen hoekwoning op ruim perceel met diverse mogelijkheden;
- Drie slaapkamers, vierde is mogelijk (splitsing);
- Ruime kelder van ca. 49 m²;
- Grote verharde tuin met veel mogelijkheden;
- Kunststof kozijnen met HR+ glas;
- Woonkamer en slaapkamer is voorzien van airco;
- Energielabel G;
- Combi-huurketel Hesi uit 2021, € 44,90 per maand, overname huurovereenkomst verplicht;
- Niet-bewonersclausule van toepassing (woning nooit zelf bewoond door huidige eigenaar);
- Per direct beschikbaar.
Deze informatie is door ons met de nodige zorgvuldigheid samengesteld. Onzerzijds wordt echter geen enkele aansprakelijkheid aanvaard voor enige onvolledigheid, onjuist of anderszins, dan wel de gevolgen daarvan.
De waarborgsom/bankgarantie is 10% van de koopsom. De koper dient deze binnen 2 weken nadat de koopovereenkomst definitief is bij de desbetreffende notaris te deponeren.
Ter bescherming van de belangen van zowel koper als verkoper, wordt uitdrukkelijk gesteld dat een koopovereenkomst met betrekking tot deze onroerende zaak eerst dan tot stand komt nadat koper en verkoper de koopovereenkomst hebben getekend ("schriftelijkheidsvereiste").hebben getekend ("schriftelijkheidsvereiste").
Overdracht
- Vraagprijs
- € 250.000 k.k.
- Status
- Verkocht onder voorbehoud
- Aanvaarding
- Direct
Bouw
- Object type
- Eengezinswoning, hoekwoning
- Soort bouw
- Bestaande bouw
- Bouwjaar
- 1954
- Soort dak
- Zadeldak bedekt met pannen
Oppervlakte en inhoud
- Woonoppervlakte
- 92 m²
- Perceeloppervlakte
- 353 m²
- Inhoud
- 310 m³
- Overige inpandige ruimte
- 47 m²
- Externe bergruimte
- 2 m²
- Gebouwgeb. buitenruimte
- 17 m²
Indeling
- Aantal kamers
- 8 kamers (3 slaapkamers)
- Aantal badkamers
- 1 badkamer
- Badkamervoorzieningen
- Toilet, douche, wastafel
- Aantal woonlagen
- 3 woonlagen
- Voorzieningen
- Rolluiken, tv-kabel, rookkanaal, natuurlijke ventilatie
Energie
- Energielabel
- G
- Energielabel registratie
- 30-09-2025
- Isolatie
- Dubbel glas
- Verwarming
- Cv-ketel
- Warm water
- Cv-ketel
- Cv ketel
- Hesi eco comfort hrc combiketel gas gestookt uit 2021 (huur)
Buitenruimte
- Ligging
- In woonwijk
- Tuin
- Achtertuin, voortuin, zijtuin
- Afmetingen achtertuin
- 171 m² (15.5 meter diep en 11 meter breed)
- ligging tuin
- Gelegen op het noordwesten en bereikbaar via achterom
Garage
- Soort garage
- Geen garage
Parkeergelegenheid
- Soort parkeergelegenheid
- Openbaar parkeren, op eigen terrein
Energieverbruik in Heerlen
Energielabel deze woning
Energielabel G
Publicatie energielabel: 30-09-2025
Stroomverbruik per jaar
(Gemiddelde hoekwoning in Heerlen)
Gasverbruik per jaar
(Gemiddelde hoekwoning in Heerlen)
* Cijfers zijn afkomstig van het CBS en bedoeld als indicatie en kunnen verschillen voor deze woning
Indicatie hypotheeklasten
Eigen inleg:
Spaargeld / overwaarde
Rente:
Laagste 10-jaars rente
Laagste 10-jaars rente
2,78% - Centraal Beheer Groen... - NHG
3,04% - Centraal Beheer Groen... - 80%
Laagste 20-jaars rente
3,29% - Centraal Beheer Groen... - NHG
3,52% - Centraal Beheer Groen... - 80%
Laagste 30-jaars rente
3,41% - Centraal Beheer Groen... - NHG
3,7% - Argenta Groen Hypotheek... - 80%
Hypotheek:
Bruto maandlasten: € 0 p/m
Netto maandlasten: € 0 p/m
Hoe berekenen we dit?
Het rentepercentage is gebaseerd op de laagste 10 jaars vaste rente voor één hypotheekdeel. De vermelde rente (2.78% met NHG) is gecontroleerd op 17-02-2026. Deze berekening is gebaseerd op een annuïteitenhypotheek die volledig wordt afgelost, waarbij de maandlasten gedurende de gehele looptijd gelijk blijven. De werkelijke rente en netto maandlasten kunnen variëren, afhankelijk van uw persoonlijke situatie en de hypotheekverstrekker. Raadpleeg een financieel adviseur voor een nauwkeurige berekening en advies. Aan deze berekening kunnen geen rechten worden ontleend; het dient enkel als indicatie.
Documentatie
Kadastrale kaart
Leefomgeving
Plattegronden PDF
WOZ waarderapport
BAG uittreksel
Brochure
Bezichtiging
Bod uitbrengen
Waardebepaling
Zoekopdracht
Alles downloaden
Zonnegrenzen bekijken
Op de kaart
Inwoners in Heerlen
Cijfers voor postcodegebied 6415
- Totaal aantal inwoners
- 6440 inwoners
- Mannen
- 51%
- Vrouwen
- 49%
Inwoners in Heerlen
Cijfers voor postcodegebied 6415
- tot 15 jaar
- 15%
- 15 tot 25 jaar
- 11%
- 25 tot 35 jaar
- 26%
- 45 tot 65 jaar
- 29%
- 65 en ouder
- 19%
Huishoudens in Heerlen
Cijfers voor postcodegebied 6415
- Eenpersoons zonder kinderen
- 46%
- Meerpersoons zonder kinderen
- 24%
- Huishoudens zonder kinderen
- 70%
Huishoudens in Heerlen
Cijfers voor postcodegebied 6415
- Huishoudens met één kind
- 11%
- Huishoudens met meerdere kinderen
- 18%
- Huishoudens met kinderen
- 29%
Woningen in Heerlen
Cijfers voor postcodegebied 6415
- Woningen voor 1945
- 26%
- Woningen tussen 1945 en 1965
- 45%
- Woningen tussen 1965 en 1975
- 3%
- Woningen tussen 1975 en 1985
- 10%
- Woningen tussen 1985 en 1995
- 2%
Woningen in Heerlen
Cijfers voor postcodegebied 6415
- Woningen tussen 1995 en 2005
- 7%
- Woningen tussen 2005 en 2015
- 5%
- Woningen na 2015
- 1%
- Huurwoningen
- 60%
- Koopwoningen
- 40%
Overige in Heerlen
Cijfers voor postcodegebied 6415
- Gemiddelde WOZ waarde
- € 125.000,-
- Personen onder de 65 met uitkering
- 18%
Overige in Heerlen
Cijfers voor postcodegebied 6415
- Adressen per km²
- 1808
- Stedelijkheid (schaal 1 op 5)
- 80%
Korte feiten over Heerlen
Heerlen (Limburgs: plaatselijk Heële) is een stad en gemeente in het zuidoosten van de Nederlandse provincie Limburg. Op 1 januari 2024 had Heerlen 87.498 inwoners (CBS). Heerlen is daarmee de grootste gemeente in de Oostelijke Mijnstreek, en de vierde van Limburg, na Maastricht, Venlo en Sittard-Geleen.
Spauwen | Werrij
Indien u vragen heeft of u wilt een bezichtiging inplannen, dan kunt u gebruik maken van het formulier hiernaast. Er zal daarna op korte termijn contact met u worden opgenomen.
Contact opnemen
Spauwen | Werrij
Spauwen | Werrij is actief in de vastgoedsector en heeft haar hoofdkantoor in Heerlen. Onze expertise ligt in het taxeren, bemiddelen en adviseren binnen commercieel vastgoed, maar ook in de aan- en verkoopbemiddeling van woningen staan wij graag voor u klaar.
Onze specialisten begeleiden deze activiteiten, waarbij iedere sector zijn eigen specifieke werkwijze kent. Commercieel vastgoed vraagt immers om een andere benadering dan particulier onroerend goed. Wat echter altijd centraal staat, is de kwaliteit en toewijding waarmee wij werken, zodat wij het beste resultaat voor u kunnen realiseren.
Door ons lidmaatschap van NVM (Business), het gebruik van moderne taxatiemethoden (TMI), onze registratie bij het NRVT en het naleven van de hoogste ethische normen (RICS), mogen onze klanten rekenen op een dienstverlening van de hoogste kwaliteit.
Spauwen | Werrij biedt een gemotiveerd team met veel ervaring in diverse vastgoedsectoren en een onafhankelijke kijk op de markt. We combineren ambitie met betrokkenheid, en werken met creativiteit en ondernemerschap om alles tot in de puntjes te verzorgen. Kortom, wij zijn uw betrouwbare partner in vastgoed!
Nieuwste reviews
-
Salesianenstraat 24
Na de prettige ervaring bij de aankoop van onze woning was de keuze snel gemaakt om ook de verkoop door deze makelaar te laten doen. We zijn...
-
Agnes Lenzen
Koop van appartement en verkoop van ons huis is uitstekend verlopen dankzij Marcel Werrij.Het contact met hem hebben wij als zeer prettig er...
-
Haghenstraat 17 A
Marcel is een geweldige makelaar die écht oog heeft voor wat jij als verkoper nodig hebt! Extreem prettig in de omgang en heel goed te berei...